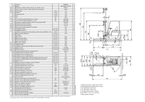
Karta danych technicznych dla Montini Bingo Zinc 163 GA

Model 2011-2016 Europe IT

Po podaniu adresu email, dokument z danymi (PDF) zostanie przesłany na Twoją skrzynkę.

  • oryginalny arkusz danych producenta
  • więcej informacji
  • szczegółowa specyfikacja

*Zasady i warunki

The privacy policy of the company LECTURA GmbH applies, which also contains further information about possibilities for correction, deletion and blocking of my data.

Wózki widłowe elektryczne Montini Bingo Zinc 163 GA



wyświetl szczegółową specyfikację