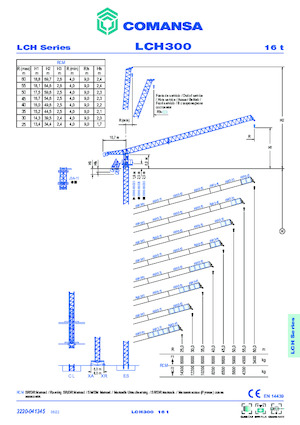
Karta danych technicznych dla Comansa LCH 300 1F

Model 2023-2026 Global DE,EN,FR,IT,RU

Po podaniu adresu email, dokument z danymi (PDF) zostanie przesłany na Twoją skrzynkę.

  • oryginalny arkusz danych producenta
  • więcej informacji
  • szczegółowa specyfikacja

*Zasady i warunki

The privacy policy of the company LECTURA GmbH applies, which also contains further information about possibilities for correction, deletion and blocking of my data.

Żurawie wieżowe górnoobrotowe z wysięgnikiem wychylnym Comansa LCH 300 1F



wyświetl szczegółową specyfikację