Karta danych technicznych dla FM-Gru 7070 TCK P20

Model 2017-2023 Europe DE, EN, ES, FR, IT

Po podaniu adresu email, dokument z danymi (PDF) zostanie przesłany na Twoją skrzynkę.

  • oryginalny arkusz danych producenta
  • więcej informacji
  • szczegółowa specyfikacja

*Zasady i warunki

The privacy policy of the company LECTURA GmbH applies, which also contains further information about possibilities for correction, deletion and blocking of my data.

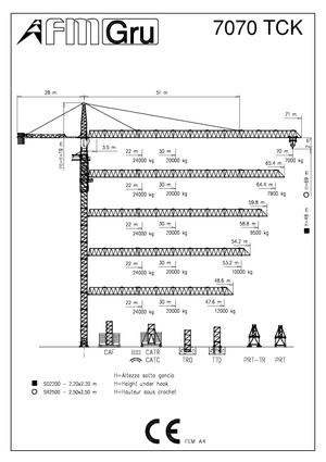
Żurawie wieżowe-WS-górnoobrotowy FM-Gru 7070 TCK P20



wyświetl szczegółową specyfikację