Karta danych technicznych dla Kroll K-1000

Model 2017-2026 Europe EN

Po podaniu adresu email, dokument z danymi (PDF) zostanie przesłany na Twoją skrzynkę.

  • oryginalny arkusz danych producenta
  • więcej informacji
  • szczegółowa specyfikacja

*Zasady i warunki

The privacy policy of the company LECTURA GmbH applies, which also contains further information about possibilities for correction, deletion and blocking of my data.

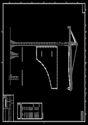
Żurawie wieżowe-WS-górnoobrotowy Kroll K-1000



wyświetl szczegółową specyfikację